高效混合配料機應用
信息來源: http://www.yqgdsb.com 時間:2022-9-27 14:03:45
昊星高效水粉乳化混合機具體分為:高效水粉混合機(泵)MC系列、立式水粉混合機THJ-L系列、分體式水粉混合機THJ-F系列、立式高剪切分散乳化機WRL系列、臥式混合分散乳化機HSR系列、分散乳化粉碎研磨泵JP(JM)系列、高效混合均化研磨泵JMZ系列和平臺式高效水粉乳化混合機(單泵型、雙泵型) HSRZ系列, 設備具有高速混合、分散、乳化、均質等功能。
高效水粉乳化混合機HSRZ系列為平臺式(單泵型、雙泵型)產品特點及用途:高效混合乳化配料機外觀獨特,體積輕巧,環保整潔,節能高效、混合迅速、輸送方便等優點,是我們開發研制成功之新一代水粉混合機器。機器主要工作原理是利用高速旋轉的分散乳化器或葉輪將粉狀物料和液體進行充分拌和,輸送出所需的混合物。本設備所吸取之最高溫為度,也可以用于果汁和其他飲料的生產。使液料快速混合應而達到理想的效益。是食品、飲料行業必不可少的設備之一。

工作原理:
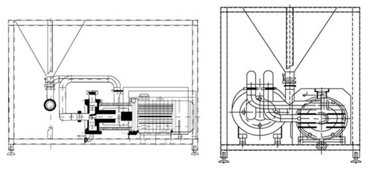
設備由主機與混合泵齒輪構成,二者垂直安裝,裝置方式 : 固定式 。由工作平臺、料斗、自吸泵和分散乳化混合機組合而成,通過分散乳化混合泵雙層壁管道將液態物與吸料泵將固態物分別抽吸進去,避免了在進入主體部分前凝結成塊。液體高速進入混合機主機體,在轉子與定子中心產生真空,以吸入固態物。固態物通過在斗口罐下方的閥門調節均勻吸入。設計簡潔、功能多樣。可以迅速、均勻地混合多中固態物,不于空氣接觸。充分混合,產品循環。在短的時間內對物料進行分散、剪切、乳化處理,粒徑分布范圍變窄。由此可制得精細長期穩定的產品。本設備設計制作精良、生產效率高。

使用說明:
高效混合乳化配料機和水粉混合泵是利用高速旋轉的翼輪(轉子),將所需混和的料和液進行充分的拌和以得到所需之成品,本設備所吸取之最高溫度為、使用前應注意各密封件裝配的貼切正確各聯結口旋合的緊密可靠檢查翼輪的旋轉方向應為順時針,為了確保食品衛生的要求,使用前應先用蒸氣進行消毒,如果一切正常即可使用。
使用時注意:
連接泵蓋的上方螺紋管為進液口,混和以后的液體由下方的管口出口,泵體下部的二梯形橡膠管接頭為連接冷卻水的進出口管,專為冷卻機械密封之用。
此泵的拆卸非常方便,松開夾箍式快裝活接頭配件即可脫開進料斗與泵蓋,旋松四只螺母便可打開泵蓋,松開主軸上的鎖緊螺母,此螺母為緊固件松開拿出混合翼輪(轉孓),露出的便是機械密封件。此泵在主軸和馬達間尚有二道密封,如發現泄露,應立即檢查各密封件是否損壞,如有損壞應立即調換。機械密封件的調換,還需進行研磨后方可使用。

1、使用完畢應立即進行拆卸清洗,以防液料積垢。一般的拆卸清洗至打開翼輪即可。清洗時可先用熱水通過,然后拆卸洗刷干凈,再按順序一一裝上,機架上的二流奶槽孔注意不能堵塞,否則密封圈失效液體溢至電動機,即有燒毀的可能。
2、使用與清洗時,電動機外罩殼不能卸除,以防浸水,電機損壞。
工藝應用:
1.可溶物(或互溶物)固體和液體加速溶解;
2.不相溶的固-液相懸浮物超細分散混合;
3.高粘度物料粉-液整體超細分散與混合;
4.納米材料團聚物的強力解聚、超細與分散混合;
5.流體含固體顆粒解聚、分散、攪拌、研磨、精細粉碎和混合(選配研磨泵)。
技術參數:
高效水粉混合機(配料平臺式)
產品型號 | 流量(M3/H) | 乳化泵功率KW | 轉速r/min | 備注 |
HSR-140Z | 0-1 | 4 | 2900 | |
HSR-160Z | 0-3 | 7.5 | 2900 | |
HSR-180Z | 0-6 | 11 | 2900/1470 | |
HSR-200Z | 0-10 | 18.5 | 2900/1470 | |
HSR-220Z | 0-20 | 22 | 2900/1470 | |
產品型號 | 流量(M3/H) | 研泵功率KW | 轉速r/min | 乳化細度μm |
HJP-140Z | 2-4 | 7.5 | 2900 | 1-50 |
HJP-180Z | 2-6 | 15 | 2900 | 1-50 |
HJP-200Z | 2-10 | 22 | 2900 | 1-50 |
HJP-250Z | 5-20 | 37 | 2900 | 2-50 |
HJP-320Z | 10-30 | 45/55 | 2900 | 2-50 |
注:混合固含量高、密度高、黏稠度高等物料,以及需同步乳化、混合、研磨和超微米級精細粉碎工藝流要求的,HSR乳化泵改為HJP研磨泵設計。 | ||||
高效水粉混合機(自吸平臺式)
產品型號 | 流量(M3/H) | 乳化泵功率KW | 自吸泵功率KW | 轉速r/min | 備注 |
HSR-140Z | 0-1 | 4 | 1.5/2.2 | 2900/1470 | |
HSR-160Z | 0-3 | 7.5 | 3 | 2900/1470 | |
HSR-180Z | 0-6 | 11 | 5.5 | 2900/1470 | |
HSR-200Z | 0-10 | 18.5 | 5.5 | 2900/1470 | |
HSR-220Z | 0-20 | 22 | 7.5 | 2900/1470 | |
產品型號 | 流量(M3/H) | 研泵功率KW | 自吸泵功率KW | 轉速r/min | 乳化細度μm |
HJP-140Z | 2-4 | 7.5 | 2.2 | 2900/1470 | 1-50 |
HJP-180Z | 2-6 | 15 | 3/4 | 2900/1470 | 1-50 |
HJP-200Z | 2-10 | 22 | 5.5 | 2900/1470 | 1-50 |
HJP-250Z | 5-20 | 37 | 7.5 | 2900/1470 | 2-50 |
HJP-320Z | 10-30 | 45/55 | 7.5/11 | 2900/1470 | 2-50 |
注:混合固含量高、密度高、黏稠度高等物料,以及需同步乳化、混合、研磨和超微米級精細粉碎工藝流要求的,HSR乳化泵改為HJP研磨泵設計。 | |||||
根據上述條件就使用物料決定水粉混合泵的型號規格,訂貨時應注意固體粉物質含量及介質情況等。
選用各型水粉混合泵,如被處理物料含粉料多或混合濃稠高,請選用大一級型號,或大功率電機、或選同型號分體式水粉混合機為佳。
配用特殊電機時,要指出防爆等級,功率及電壓等參數。
根據上述條件就使用物料決定水粉混合器的規格,訂貨時應指出物質濃稠度及介質名稱等。
我公司可按照客戶對加工物料的酸度、堿度、濃稠度等。SUS304AISI316316L
適用溫度 : 1-120(℃) 特殊設計要求可定制。
適用范圍:特別適用于再制奶的乳制品生產如:食品工業、日用化工、醫藥工業、各等行業優質環保的生產加工需要,配制奶粉、乳清粉、糊精粉、酸奶、果奶茶、冰淇淋、月餅餡、奶油、果醬、果汁、大豆、豆醬、豆沙、花生奶、蛋白奶、鈣奶、麥乳精、香精、各種再制飲品等。與流體進行分散混合,我們為了更好地滿足各行業,并可按照客戶對加工物料的酸度、堿度、濃稠度等要求特殊定制生產。
微信





